SIPs Homes - $129+ Per Sq Ft
Post & Beams Homes - $169+ Per Sq Ft
Timber Frame Homes - $269+ Per Sq Ft




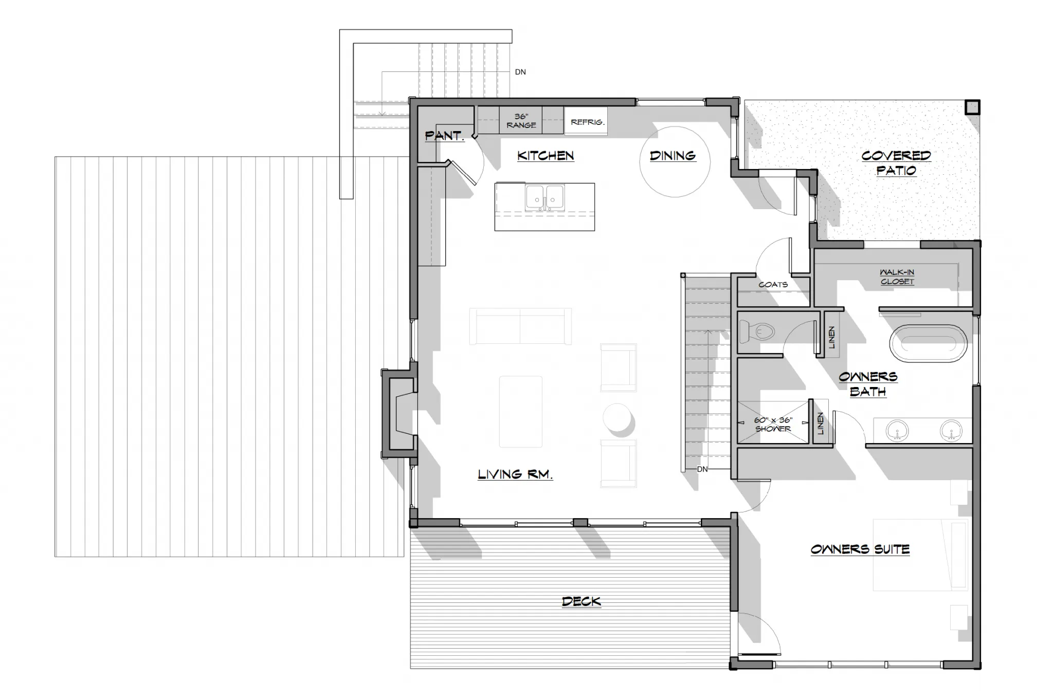
Main Level
Upper Lever

Choose one of our existing home/commercial models.

Have our architectural designer modify one of our existing models to fit your desires.

Bring your own plans for us to provide a comprehensive material package for you.

Have our architectural designer create your build from scratch (if you can dream it we can make it).

Once you approve your design it will be sent out to our structural engineer. Your conceptual design will be pieced together into a set of plans specific to your local requirements, regardless of where you are in the country.

Your home or commercial structure materials will now begin the prefabrication process and materials will be procured.
When the foundation of your structure is nearing completion, your material package will be shipped to your location ready for your builders to assemble.
Learn more about the process and our turnkey assistance options, helping you turn our material package into your new home! Click Here To Learn More